- 安曇野市堀金
614Sat - 629Sun
安曇野市堀金 火と本を愉しむ暮らし
【完全予約制】【1時間1組】 火・水定休日
このイベントは終了いたしました。
たくさんのご来場ありがとうございました。
今すぐお申し込み!
■木の梁がアクセントのオシャレな外観
安曇野平と調和の取れた外観。
塗壁と木のデザインが特徴です。
■間取り■ 延床面積36.12坪
1階 家事導線が考え抜かれた回遊式PLAN
複数箇所の回遊で使いやすさと、ママが嬉しいファミリーCLを含む水廻り動線。
読書ヌックやペレットスト―ブなど全てが揃った1階
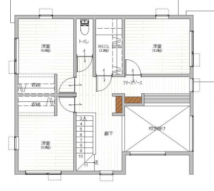
■2階
部屋からは北アルプスの景色が一望できる2階
リビングが望める大きな吹き抜けに面した書斎コーナーは
家族を感じながら自分時間を過ごせる空間。
■リビング
読書ヌック横の壁面収納やペレットストーブなど、
収納上手で趣味を楽しむスペースが沢山盛り込まれています。
■モダンデザインのペレットストーブ
全館空調にはない近年人気の暖房。体の芯から温めてくれるペレットストーブ
火を見ながら読書時間。そんな安曇野にピッタリの生活を実現。
■階段下の小上がりヌック
階段下の有効利用。
子供の遊び場やなど色んな使い方で出来てお勧めです。
■足を延ばしてゆったり読書time...
■庭と家とをつなぐタイルテラス
天気の良い1日は、テラスでゆったり時間を過ごす。
ウッドデッキやタイルテラスはナチュリエの特徴。
■広々土間収納
使い方色々。
アウトドアのギアや濡れた衣類もそのまま収納。
ベビーカーも入って日々大活躍の収納。
■1階のファミリークローゼット
帰宅動線上に、家族ごと分けられたファミリークローゼット。
洗面で手を洗う→着替える→洗濯物をIN
考えぬかれた帰宅動線。
■吹き抜けで常に家族を感じる書斎コーナー
2階にも、趣味の読書を楽しんだり、ちょっとしたお仕事も出来る書斎コーナーを配置。
家族を感じながら、でもしっかり分けられた空間に配置。
■安曇野の景色を楽しめるお部屋
2階の洋室には大きな窓を配置、北アルプスの景色を一望
■好きに囲まれた生活
本は、収納用の本棚と絵本など魅せる本棚=bookレールニッチに!!
日々好きな物に囲まれるライフスタイル
タイルテラスや読書ヌックなど、落ち着いた雰囲気の中で火や読書、趣味を楽しめるお家。
ぜひ実際にご覧ください。
