- 安曇野市穂高北穂高
920Sat - 1005Sun
【見学会延長中】北アルプスを望む火を愉しむ暮らし in 安曇野市穂高
見学会延長中 10月5日㈰まで 火・水定休日
このイベントは終了いたしました。
たくさんのご来場ありがとうございました。
ご好評につき、見学会延長中。ラスト10月5日㈰まで!!
今回のお宅は、北アルプスが見える土地というテーマで土地から探したお家です。
大屋根の勾配天井リビングの吹抜けは必見の仕上がりです。
2階の昭和インテリアで飾られる小上がり和室などなど見所いっぱいです。
景色をどう暮らしに取り入れるのか!?
そんなお悩みの方は是非遊びに来て下さいね。
ご見学ご希望の方はフリーダイヤルもしくはお問い合わせフォームよりお問い合わせください。
■安曇野平に溶け込んだ大屋根の外観
大屋根と塗壁の色味は安曇野平との調和が取れた外観
■間取り図 1F
広々玄関土間や1段下がったキッチン・階段下ヌックなどが特徴
帰宅動線重視の近年注目の間取り通り、洗面・ファミリーCL・脱衣ランドリーが一体化。
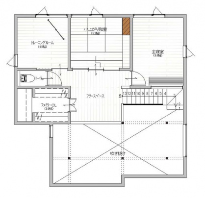
■間取り図 2F
北アルプスの景色を重視した2階の間取り。
北側のトレーニングRM・テレワークの小上がり和室・主寝室からは
大きなピクチャーウィンドウで北アルプス一望
■景色に一目惚れした土地
北アルプスの景色は必見です。
景色と街並みに溶け込むナチュリエ
■落ち着く空間造りのリビング
懐かしさや重厚感のあるむき出しの柱や梁が特徴の落ち着いた雰囲気のリビング。
オークの床材やキッチンパネルまでナチュリエ特徴の無垢扉を採用
※ナチュリエ施工事例
■収納だけじゃない玄関土間
玄関繋がりの内土間は広く設計
bikeを掛ける壁など収納だけじゃない用途を追加
※ナチュリエ松本店施工事例
■階段下のヌック
リビング横の階段下はちょっと心地いい空間に。
本を読んだり、腰かけてリビングソファーに代わりになったり
お施主様次第で使い方は色々です。
※ナチュリエすわ店施工事例
■2階の小上がり和室
2階には、テレワーク用の小上がり和室
昭和レトロ家具をコーディネイトする計画で設計・コーディネイトしております。
※ナチュリエすわ店施工事例
■ペレットストーブ
スタイリッシュなデザインではなく、マキストーブを思わせる無骨なデザイン。
あえて自動着火などの機能がない、マキストーブに近い着火などの手間を愉しむ機種です。
␣
■家と庭を繋ぐ空間
BBQも外遊びも思いっきり楽しめる100坪の庭
家と庭をつなぐ位置にウッドデッキを配置。
南側のデッキからは安曇野の田園風景が広がる景色。
今回のお家のウッドデッキは縁側をイメージ。
※ナチュリエ施工事例
