ナチュリエ名古屋のモデルハウスは とくに朝が気持ち良い!

ナチュリエ名古屋の堀部です。
モデルハウスにほぼ毎日います。快適です。自然素材の良さを実感しています。


自然素材 自然塗料

パイン材 無垢フローリング 


モデルハウスに一歩入ればあたたかいです。
無垢フローリングは肌触りが気持ち良い。
ほんとに快適で家に帰りたくないくらいです(笑)
この心地よさは体感していただくのが一番、
ぜひモデルハウスへお越しください。ご予約はこちら


ソファ TVボード 観葉植物 自然素材

朝の陽光が気持ち良いリビング


さて、自然素材のよさは以前から経験済みですが、それだけではないのが家づくり。
プランニングの段階からしっかりストーリーをつくり間取りを計画。
例えば、吹き抜けの場所と窓の設定。
モデルハウスの家族構成は夫婦(共働き)と子供(小学生)2人でアウトドア好き。
平日、家族が顔を合わせるのは朝。休日だって行動派なら朝からうごきます。
だったら、朝のひとときを心地よくしよう。
東側に吹き抜けと掃出し窓。明るさだけでなくあたたかさも届けてくれます。
などなど、、、ライフスタイルに合わせて、優先順位を決めてプランしていきます。


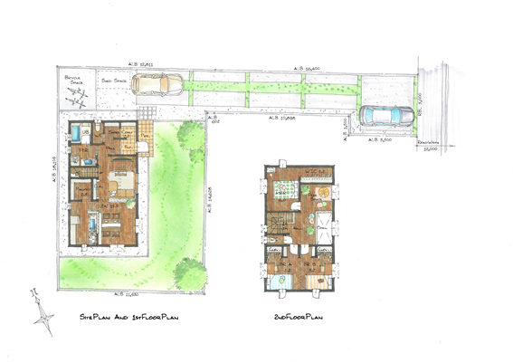
図面 平面図 2階建て 

モデルハウス間取り図


ちなみに私の家はLDKではなくリビング+ダイニングキッチン。
リビングはTVをみたり、くつろいですごすとき。
ダイニングキッチンではわいわいがやがや。
料理をして、美味しく食べて、家族で会話をする場所。
考え方はいろいろですが、食べることが好きな我が家だからこのスタイルです。
あなたの暮らしはどうですか?


ナチュリエ名古屋では一人一人のライフスタイルからこだわりのおうちを提案しています。


share

  • facebook
  • twitter
  • line

この記事を書いたスタッフがいる店舗

shop

名古屋店の開催中イベント

お住まいの地域(店舗)を
お選びください。