- 松本市笹賀
411Sat - 426Sun
ナチュリエ・コーディネイターが建てた ”通り土間のある暮らし” in 松本市笹賀
【完全予約制】【1時間30分に1組見学start】 火・水定休日
今すぐお申し込み!
松本市笹賀Naタウン内にて、4月11日㊏~26日㊐の期間に完成見学会を開催させて頂きます。
Naタウン内4棟目のお家は、なんとナチュリエ・コーディネイターが建築した「通り土間のある暮らし」がコンセプトのお家です。
見どころは、なんと言っても玄関からLDKを通ってタイルテラスまで繋がる通り土間です。
わんちゃん、ねこちゃんの為の空間は、ペットと共に暮らせる家をご検討中の方は必見です。
また、コーディネイターがどんな素材・色・仕様をコーデするのか、ナチュリエのプロの家を是非ご覧ください。
こちらの予約ページからご予約頂けましたら、ご見学当日は同Na分譲地内に建つ、
インナーガレージ付きの「隠れ家カフェ」がコンセプトの2026モデルハウスも同時見学可能となっております。
大屋根の外観は、室内からは勾配天井の吹き抜けを作り上げております。
タイルテラスにも屋根があり、どんな天気でもテラスでのんびりできます。
※実邸写真
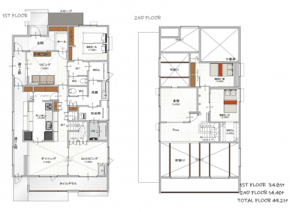
延床面積49坪のWリビングの間取り。
2世帯住宅にもなる、1階で生活完結型です。
ペットの進入できないエリア工夫などプロの演出が沢山あります。
玄関から続く約13mのリビングからタイルテラスまで繋がる通り土間
家の中でも、わんちゃん・ねこちゃんの運動コーナー。
ペット用だけでなく、ナチュリエらしい土間サロンなどもおすすめです。
※実邸写真
ナチュリエのコーディネイターがオーナーのお家。
細部まで拘って厳選した仕様となっており、想いのあるNaオススメの仕上がりになっております。
※ナチュリエ松本店施工例
家と庭をつなぐ半ソト空間。
屋根があるタイルテラスは、使い方が大きく変わります。
庭でBBQ、テラスでのんびり食事。そんなライフスタイル。
※ナチュリエ松本店施工例
大屋根の最大限の効果は、やっぱりちょうどいい勾配天井の吹き抜け。
Wリビング両方に設置された吹き抜けは圧巻です。
木の梁とのコーデもナチュリエらしさがいっぱいです。
※ナチュリエすわ店施工例
通り土間と繋がったリビング。
解放感ある空間になっております。
※ナチュリエ松本店施工例
通り土間を活かした土間CL。ギアの収納にもぴったり。
土間は色々な使い方が可能な空間です。
※ナチュリエすわ店施工例
通り土間を活かしたナチュリエの特徴の薪ストーブ・ペレットストーブの設置におすすめ。
※ナチュリエすわ店施工例
お部屋の汚れた空気を換気しつつ、汚れた空気と一緒に捨てていた熱を給気時に回収して室内に戻すことで熱回収により空調負荷を軽減でき、冷暖房コストを抑えることができる熱交換換気システムを採用しています。
トリプルサッシなど、オール2026年仕様となっております。
※画像はイメージです
