今すぐお申し込み!
松本市笹賀のナチュリエタウン内にて待望の2026年モデルハウスが完成。
1月31日~2月15日の3週間の限定公開です。
ナチュリエ松本店2026年モデルハウスのコンセプトは基本のアウトドアコンセプトに+3つの暮らしを提案。
1つ目は「隠れ家カフェキッチンでお家カフェ時間」
2つ目は「自分時間をくつろぐインナーガレージ」
3つ目は「土間サロンでピザ窯付き薪ストーブを愉しむ暮らし」
2026年モデルハウスは、どう自分らしい暮らしを日々の暮らしと融合させるのか、そんな想いで設計しました。
ナチュリエが想う暮らしを是非ご体感ください。
2月14日㈯15日(日)の2日間は「ライフスタイルイベント」も開催。今回はバレンタイン企画です。
オーブン付き薪ストーブで自分でトッピングしてチョコレートピザを焼いてみよう。
イベント参加ご希望の方は、2月14日・15日のご予約枠にご予約下さい。
期間中3週間限定で、スノーピークのサーモタンブラープレゼントもあります!!
※プレゼントについては、各種条件があります。下記をご参照ください。
塗壁と天然木の外壁。
大屋根感が圧巻の外観となっております。
ナチュリエの標準仕様左官仕上げの塗壁も和モダンな外観を創り出しております。
※実邸写真
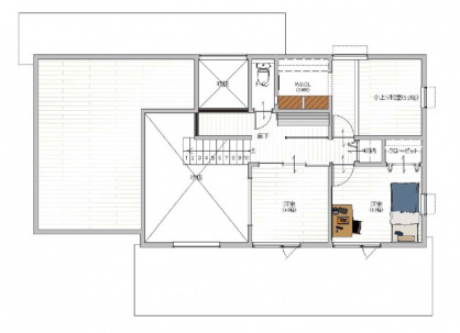
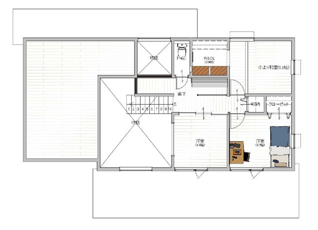
建物は38坪に居室空間に7坪のインナーガレージ。
約30帖のLDK+土間サロンで広々した空間となっております。
キッチン・ダイニング・リビング・ヌックから見渡せる位置にインナーガレージを配置。
キッチンから土間サロンへはカフェカウンターでカフェキッチンを再現しております。
1.5階建ての特徴の勾配天井でここ最近再注目の低天井の空間演出をしております。
主寝室は、小上がり和室でBEDの必要無。天井も低く落ち着く空間になっております。
2つに分かれた吹抜けはちょっとした狙いが…当日staffに聞いて見てください。
ナチュリエが提案する趣味の空間、雨の日の庭アウトドアリビングガレージ。
ソファーとテーブルを配置して、自分時間を過ごせる空間になっております。
ガレージからヌックやLDKも見える配置です。
ガレージから庭にも広々土間収納にも直結。ママもうれしい帰宅動線を実現。
今回のインナーガレージは、アウトドアを楽しむことを想定して設計しており、
スノーピークのアウトドア家具をベースに展示しております。
※実邸写真
今回のインナーガレージは、アウトドアを楽しむことを想定して設計しており、
庭へも直アクセスとなっております。
スノーピークのアウトドア家具をベースに展示しております。
※実邸写真
キッチンCARをイメージした、キッチンからのカフェカウンター。
造作窓が可愛いコーディネイト。
土間には注目のHETAのオーブン付き薪ストーブを設置。
休日は土間サロンでピザを焼いて、お庭でお家アウトドア時間を愉しめます。
※実邸写真
ステンレスと左官仕上げの天板モラートでカフェキッチンを設計。
コの字型にすることで、料理動線も考えられ日々の料理時間を愉しめる工夫がいっぱいです。
※実邸写真
ガレージが見渡せるリビング横のスキップフロアーヌック。
室内仕様も、珪藻土系の塗壁やオーク材の床材、タイルなどナチュリエが拘り抜いた素材。
まだまだ見所はいっぱいです。
是非ご体感ください。
※実邸写真
見学期間中は体感できることがいっぱい。
薪ストーブ迷ってる人、ガレージで意見が分かれているご家族は、まずは体感してみてください。
薪ストーブの暖かさ。ちょっとオーブンも体感できるかも…。
インナーガレージのある暮らし、ガレージの概念が変わる体感をしてください。
※HETA 同モデルメーカー様施工例
玄関ホールは天井木貼りでコーディネイト。
上を見上げると、アイアン手摺り越しの吹抜けホールにピクチャースペースを配置。
好きな絵や写真、保育園で書いてくれたお子様の想い出の絵なども飾ってもステキ。
玄関ホールからは、スキップヌックやリビング、水廻りへの
帰宅動線も考えつくされた設計。
※実邸写真
オーブン付きの薪ストーブでトッピングしてピザを焼いてみよう!!
今回採用の薪ストーブはHETAのエクリプス。
天然石やオーブン機能など遊び心のある1台です。
今回は、通常のピザに追加でデザートピザも選べます。
ガレージ内では、子供たちが楽しい「チョコレートフォンデュー」も企画中!?
staffみんなで、ナチュリエの暮らしをイメージできるイベントを企画しました。
是非、この2日間にご予約下さい。
※ライフスタイルイベント参加ご希望の方は、2月14日㈯15日(日)にご予約下さい。
